点击上面蓝字:装修学,关注我们
主治正在迷茫的装修小白
文艺森女系一直是女业主的身上的标签,设计师融入了法式的一些精致线条的元素及色彩,加入些波西米亚的小碎花。色彩都以马卡龙色系为主,甜蜜可爱。
![]()
客厅
![]()
![]()
![]()
![]()
![]()
餐厅
![]()
![]()
![]()
主卧室
![]()
![]()
![]()
![]()
次卧室
![]()
![]()
儿童房
![]()
![]()
书房
![]()
![]()
![]()
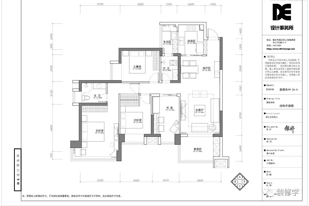
案例地址:重庆·雅居乐国际花园
户型面积:110平米
设计风格:清新小法式
硬装设计:DE 邹井
软装设计:DE 周兰君
整体费用:35W
欢迎评分、点评案例
以10分为满分
-End-
推荐阅读
||
|看不懂报价表怎么办?||
![]()
↓↓↓↓↓↓↓点击阅读原文,看更多装修案例
银滩二手房