![]()
来源:ABBS(ID: ABBS02861998484)
实习编辑:程洁
有间空间:黑匣子运动馆
空间点位:中国成都静居寺西街55号
设计机构:合什建筑(HAD)& 朴诗建筑(EposArchitects)
主持建筑师:周勇刚
空间面积:900㎡
空间摄影:存在摄影
空间类型:运动馆
一组不同开放性的白色匣子巧妙地契合进城市老化社区一角的荒置空地,从街道看过去,黑匣子是白的!钢结构梁柱、波纹钢板和打孔钢板在昭示着其临时性,其内闪现的健身人影和篮球拍击的声响则清晰地叙述了它的功能。
![]()
▲ 入口
![]()
▲ 篮球场看向操厅
![]()
▲ 二楼平台看庭院日景
![]()
▲ 看台向下看庭院
![]()
▲ 庭院看向入口方日景
![]()
▲ 品饮区日景
![]()
▲ 淋浴区看向品饮区
![]()
▲ 二楼看向瑜伽房
![]()
▲ 咖啡厅看向庭院
![]()
▲ 二楼品饮区
![]()
▲ 儿童游戏网和操厅
![]()
▲ 庭院篮球半场
![]()
▲ 品饮区室内看向庭院
![]()
▲ 二楼球架背后看向运动场
黑匣子的室内部分被深色主宰,在业主低造价前提下,钢、木、混凝土板等基本材料完成室内光线和色彩变化的同时,也在叙述建筑多项功能的交替:运动健身、艺术展览、共享生活、PARTY····……营造不同的场所体验。
![]()
▲ 一楼咖啡厅
![]()
▲ 接待前区
![]()
▲ 器械单车区
建筑本身足够结实地盛满了整个场地边界,为了促进活动的多样性,同时避免混乱,,同时几乎所有交通流线组织、空间内外转换都围绕场地中心展开,周边的建筑实体在迎合中心形虚而神实的召唤中,产生着不确定的扭动与流动,体量由此愈加有趣而丰富。
![]()
▲ 二楼淋浴区楼顶看四周环境
![]()
▲ 品饮区外平台
![]()
▲ 二楼品饮区外侧穿孔门
![]()
▲ 瑜伽厅向外看二楼庭院
项目在市政管理意义上的不确定性和经营探索上的不确定性主宰了建筑功能的不确定性和空间上的流动性,由之展开了一个充分利用边界条件的低成本临时建筑。在此基础上,设计师对建筑的开放性和封闭性作出了最大化的关注,因此设计师面对建筑的现实问题诸如社区激活与互动、功能变化与衔接、建筑的相对临时性思辨等诸多复杂挑战,产生了在哲学意味上暧昧而温和的不界定的结论,最终结合运动和娱乐的多方位需求,创造了一个积极而生气勃勃的空间,成为当地最受欢迎的场所。
![]()
▲ 瑜伽厅看向操厅
![]()
▲ 瑜伽房外二楼庭院
![]()
▲ 操厅
![]()
▲ 操厅朝向篮球架方向
![]()
▲ 操厅室内日景
![]()
▲ 瑜伽室内
![]()
▲ 品饮区室内,朝向篮球架方向
![]()
▲ 品饮区室内朝向操厅方向
夜幕降临后,透过疏密变化着的玻璃和打孔钢板晕染后的灯光,在黑匣子骄傲的宣布在这稍显沉闷的街区,它非常醒目,俨然是活力的中心,同时与周围环境相互协调。
![]()
▲ 入口夜景
![]()
▲ 庭院夜景
![]()
▲ 二楼平台看咖啡厅
![]()
▲ 庭院看向入口方夜景
![]()
▲ 办公区看向二楼品饮区
![]()
▲ 台阶看台看向二楼品饮区
![]()
▲ 操厅室内灯光效果
![]()
▲ 二楼品饮区室内
![]()
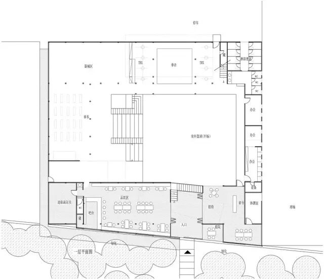
▲ 一层平面
![]()
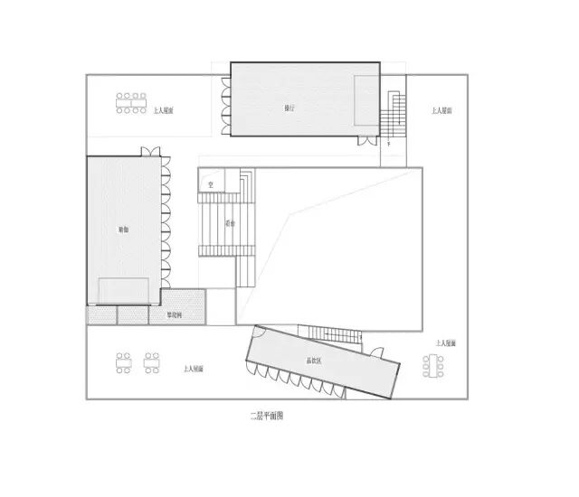
▲ 二层平面
![]()
▲ 项目模型
![]()
▲ 设计师:周勇刚
出生于重庆,毕业于西南交通大学建筑学院,后就职于四川省建筑设计院。现为合什建筑设计主持建筑师, EPOS建筑设计合伙人。
► 点击左下角“阅读原文”,进入装配式建筑展厅,一站式了解装配式建筑行业~
建筑革新最前沿!在这里了解装配式建筑:
未来,这种新型墙体将大有作为!装配式建筑一大利器! 史上最全面的装配式建筑项目经验分享!6大案例+近百张现场图,纯干货!